2018-11-10
注塑成型加工指南 | 模具设计



伟达叠模3d图



1构造材料

要根据应用需求选择适当的模具钢。如果是原型制作,则无需使用硬化模具钢。大多数情况下,通常使用预硬化钢或铝来降低成 本,以及便于在原型制作阶段对模具进行调整。这些软性金属还可以模塑出足够的试件及预制部件。预硬化的模具钢(如 P-20 或 NAKR-55)常用于制作大规模的模具,因为在大型应用中进行模具钢硬化是很不切实际的。


在产量较高的情况下,需要对型芯和模腔使用硬化模具钢。S-7、H-13 和不锈钢 420 是最常用的钢材。S-7 是极其优秀的模钢,可 以长时间用于生产运作。如果需要很高的熔体和模具温度,则应选用 H-13 型钢材。H-13 还可用于制作热流道歧管。H-13 的回火 温度非常高,可以承受很高的模具加工温度而不影响硬度。


如果应用领域对耐磨损性提出很高的要求,或者环境中会产生大量冷凝现象,则不锈钢则为模具钢的最佳选择。可使用 A2、 ASP23 或 D-2 型钢材制作具有高磨损性的模腔插件。


所有模具钢都可依靠某些种类的镀层保护来防止磨损和腐蚀。只有不锈钢可通过焊接和机械加工来修复。对于已有镀层的钢,只 有在除去镀层后才能进行修复。修复后需重新敷涂镀层。

表面光洁度 |

根据部件美观要求、客户需求和功能的不同,成型部件的表面 可能各不相同。从 SPI #1 镜面般的高光泽表面到使用蚀刻技术 得到的纹理表面,LNP 复合材料几乎可以拥有任何类型的成型 部件表面光洁度。需要了解的很重要一点是,某些材料在具有 了某种模具表面光洁度后性能得到改进。例如,聚丙烯在无光 表面模具中的脱模性明显好于高光表面的模具。在填充量很多 的树脂中很难实现高光。


排气 |

为了最大程度提高模具性能,排气是成型周期中的重要一环。当热塑性材料进入模腔时,需要排出模腔中的空气。排气孔通 常位于最后填充到的部位,靠近缝合线的部位以及流道系统 上。沿分模线周边分布的附加排气孔可大大提高整体排气性 能。模具中的残留气体在成型部件上显示为焦痕。基本经验 是:模具中气体必须能够以与塑料进入模腔相同的速率排出。


气孔深度因所用材料而不同 - 通常非晶态热塑性材料由于粘度 较高,要求的气孔深度较大。

单腔和多腔 |

有三种基本类型的模具在工业中最为常用,尤其是使用 LNP 复 合材料的模具。

最常用的类型是图 1 所示的两板式冷流道配 置。材料经注道衬套、流道系统射入部件中。在冷却后,所有 成型件被顶出(包括浇口、流道和注道)。然后取下部件,并将 余下的流道和注道废弃使用或回收处理。


图 2 所示是带冷流道 的三板式模具。使用这种设计时,材料经注道和流道系统射入 部件模腔中。冷却后打开模具,将部件与浇口和流道分离。部 件从流道上自然脱落。仍然需要回收利用或丢弃注道、浇口和 流道。


图 3 显示了电加热型热流道歧管模具。对歧管与浇口探 针通道进行加热,使其达到或接近聚合物的熔体温度,使材料 维持熔化状态。由此,则无需处理注道、浇口和流道废料。这些系统与常规的两板式或三板式设计相比较为昂贵,但可以更 好地对材料进行热控制,而且没有什么废弃物。

热流道 |

全热流道模具或“无流道”模具具有很多优点,但必须精心设 计,以确保对流入模腔内的熔体进行适当控制。尽管无流道模具在成型操作中几乎不会产生任何废弃物,但在启动时易出现问题,尤其是使用半结晶 LNP 复合材料的模具,这种材料易于快速冷固。需要遵守的原则包括:


• 仅使用专门针对应用特点设计的、平衡良好的热流道歧管系统。


• 根据所用材料的不同,可以将热流道设计成用敞开式浇口底 板直接浇到部件上,也可使用阀门浇口进行无残留成型,也 可把浇口开在小表面流道上。


• 加热的流道路径和热底板应该提供可顺利进入模腔的流动路 径,并且在外部进行加热。


• 在使用长玻璃纤维增强型树脂时,浇口残留是不可避免的。


• 应使用来自一家热流道制造商的全套系统,而不是使用来自 不同制造商的不同组件。


• 浇口尺寸取决于所加材料的量和类型、部件大小/配比 和壁厚。


• 有关热流道设计的更多信息,请咨询 GE 塑料集团技术 人员。



2塑料加工业中常用的模具表面增强方

下表为成型操作人员和模具制造人员提供了多种常用的模具钢处理方法,使其具有防腐蚀性或改进其耐磨损性。可能还有其他解决方案。


3注道、流道和浇口


注道衬套 |

使用常规模具时,热材料经过注道衬套进入模具。流道系统引 导材料经由浇口进入模腔。要使熔体分布适当和正确顶出成 型部件,注道衬套的正确设计和适当尺寸是至关重要的。注 道“O”直径应该比喷嘴出口直径约大于 20%,以防模具开启时注 道阻塞。注道尺寸示意图如下所示。“O”尺寸还与部件和流道大 小密切相关。可以使用加热的注道衬套取代常规注道衬套。加热注道(或 叫“热”衬套)的初始成本可能比“冷”衬套高,但由于它消除了连 在每个部件或流道系统上的注道,因此可极大地减少产生的废 弃物。有了热衬套,对进入流道系统的熔体温度的控制就能更加精确。

流道设计 |

流道应该尽可能短,以减少不必要的压力下降。横截面最好是 圆形。如果流道须放置于模具的一半处,请使用梯形圆底的流 道。半圆和扁平流道效率不高,不推荐使用。流道应该能使材料平衡、不受限地流入一个或多个部件(如果 使用多个模腔的话)中。通常,一条流道每转 90 度就需要在 直径上缩小 20%。在设计流道系统时需要考虑到这一点。圆形 流道的直径通常为 0.125” – 0.375” (3.2 -

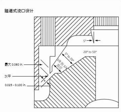
浇口 |

LNP 复合材料部件的浇口设计应该能提供充裕的加工余地,同 时不产生模内应力。根据所用浇口的类型(即潜伏、边缘、附耳等),浇口的一些基本尺寸也会控制填充速率、流进模腔的材 料量和部件凝固的速率。


壁厚决定了浇口的大小,而部件几何 形状则决定了浇口在部件上的位置。浇口有三个关键的尺寸:深度、宽度和面。关于几种浇口的具体设计在下一页中显示。



浇口大小/位置 |

• 浇口大小最小为 0.040” (1mm),对于 Verton 长纤维复合材 料是 0.100” (2.5mm) - 圆形或梯形 - 50 –60% 壁厚(用于结晶复合材料) - 50–75% 壁厚(用于非晶态复合材料)


• 最好在壁截面最厚的地方 - 使浇口正对壁或凸套,以防回填和“喷射”(Verton 长纤维 复合材料除外) - 建议不要对 Verton 复合材料使用隧道式浇口。